Главная страница » Дома » Дома из газобетона » Дом из газобетона №112
Дом из газобетона №112
13 580 000 ₽
Стоимость зависит от комплектации
Размеры
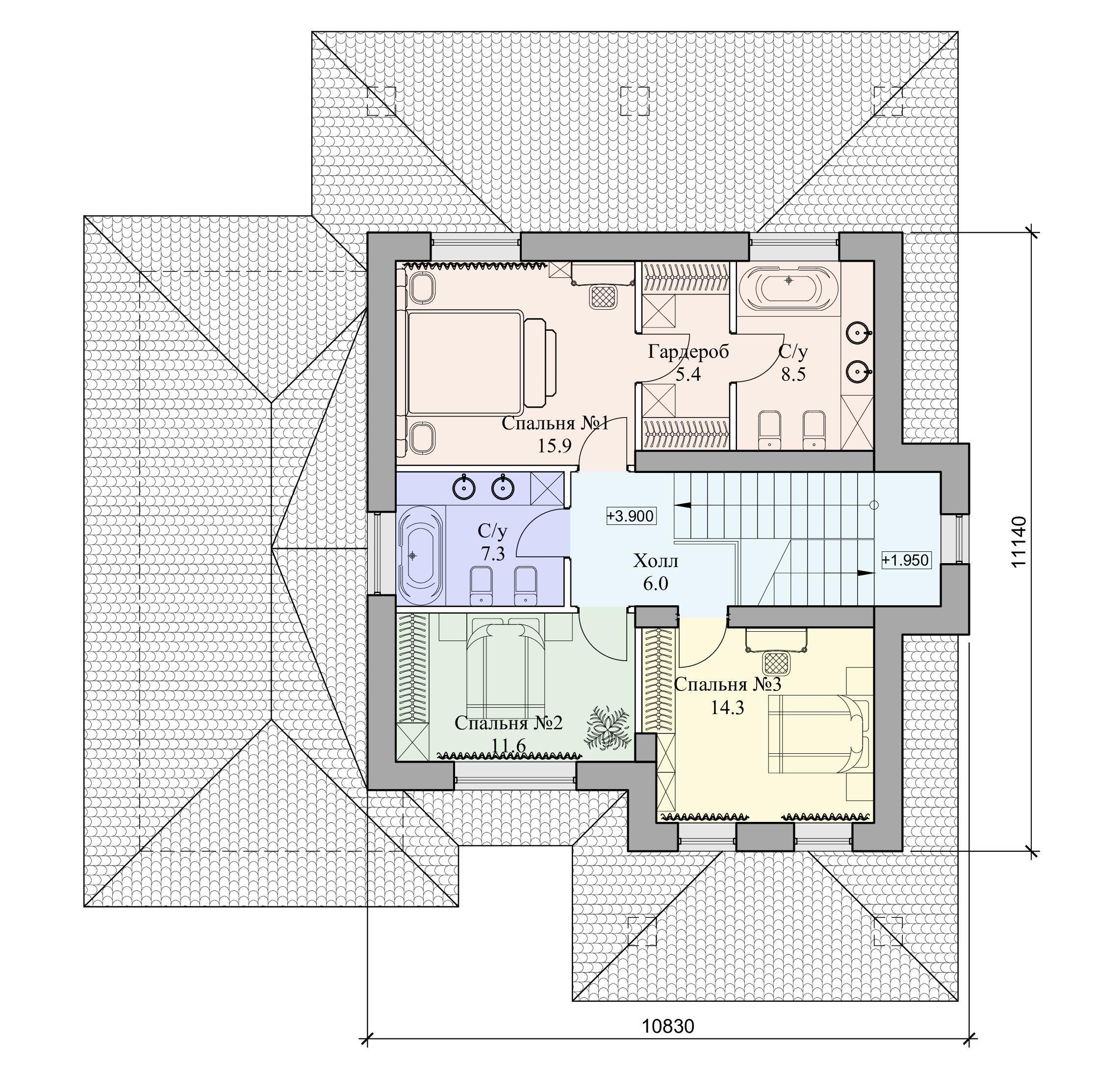
14,9х17
Площадь
194м²
Получите консультацию
Оставьте свой номер телефона и наш специалист свяжется с вами в ближайшее время!
Комплектация домов из газобетона
Наименование
База
Стандарт
Как на картинке
13 580 000 ₽
по запросу
по запросу
Утепленная монолитная ж/б плита с ребрами жесткости вниз (бетон М350, толщина 200 мм, арм. ø12мм, шаг 200 мм; сечение ребер 400х400 мм, арм. Ø12 и 8 мм, шаг 200 мм; песчаная подушка 300 мм). Ленточный монолитный ж/б фундамент под террасу, гараж (при наличии)
Рулонная (наплавляемая) гидроизоляция Стеклоизол ТПП Технониколь (в 2 слоя)
Утепление толщиной 50 мм сплошное под всей конструкцией фундамента
Точки канализации на 1-ом этаже строения (прокладка под пятном застройки и отвод на 2 метра за границу фундамента)
Ввод воды в бойлерную (прокладка ПНД трубы и отвод на 2 метра). Монтаж закладной под ввод электрокабеля
Монтаж фанового стояка в кирпичной шахте с выводом трубы на крышу
Технологические отверстия под монтаж шахт дымохода и вытяжных вентканалов
Устройство кирпичной шахты под дымоход с выводом трубы на крышу (по проекту)
Устройство кирпичных шахт вытяжных вентканалов с утеплением холодного контура и выводом трубы на крышу (по проекту)
Внешние несущие стены: газобетонный блок D500 толщиной 300 мм (ж/б оконные перемычки с U-блоком; монолитный ж/б пояс с утеплением и доборной кладкой)
Внешние несущие стены: газобетонный блок D500 толщиной 400 мм (ж/б оконные перемычки с U-блоком; монолитный ж/б пояс с утеплением и доборной кладкой)
Внутренние несущие стены: газобетонный блок D500 толщиной 300 мм (ж/б дверные перемычки с U-блоком; монолитный ж/б пояс)
Перегородки из газобетонных блоков D500 толщиной 100 мм
Перекрытие из готовых пустотных ж/б плит. Монолитные участки (бетон М350, толщина 220 мм, двойной арм. каркас, ø12мм, шаг 200 мм, усиления по проекту)
Полностью монолитное перекрытие (бетон М350, толщина 200 мм, двойной арм. каркас, ø12мм, шаг 200 мм, усиления по проекту)
Перекрытие усиленное балочное деревянное (несущие балки 200х50, 200х100, по расчету). Обработка древесины огнебиозащитным составом
Утепление 150 мм плитами из минеральной ваты ROCKWOOL и монтаж защитных мембран JUTA Ютавек, Ютафол
Монтаж деревянной обрешетки 40х20 мм (подшив) по низу чердачного перекрытия.
Усиленная стропильная система (несущие стропила 150х50, 200х50 мм по расчету, ригели 150х50 мм, контробрешетка 50х50 мм, обрешетка 100х25 мм, мембрана JUTA Ютавек). Обработка древесины огнебиозащитным составом
Устройство покрытия крыши из металлочерепицы (покрытие: полиэстер, полный комплект по проекту)
Индивидуальная отделка "как на картинке"
Обшивка свесов кровли (включая потолок балконов, террас, крылец) виниловыми софитами или имитацией бруса с тонированием (по проекту)
Устройство водосточной системы (из пластика) по периметру кровли дома для огранизованного сбора дождевой воды с крыши
Окна и балконные двери пластиковые, профиль REHAU с двухкамерным энергоэффективным стеклопакетом (3 стекла)
Входные монолитные ж/б лестницы (крыльца, по проекту)
Межэтажная монолитная ж/б лестница (по проекту)
Полный пакет проектной документации (АР, КЖ, КД)
Гарантия 10 лет на материалы и работы
Все транспортные и погрузочные работы
Независимый технадзор
Работа с опытным архитектором, возможность полностью адаптировать проект под Вас бесплатно
Персональный менеджер по сопровождению стройки
Регулярный фотоотчет по строительству
13 580 000 ₽
Утепленная монолитная ж/б плита с ребрами жесткости вниз (бетон М350, толщина 200 мм, арм. ø12мм, шаг 200 мм; сечение ребер 400х400 мм, арм. Ø12 и 8 мм, шаг 200 мм; песчаная подушка 300 мм). Ленточный монолитный ж/б фундамент под террасу, гараж (при наличии)
Рулонная (наплавляемая) гидроизоляция Стеклоизол ТПП Технониколь (в 2 слоя)
Утепление толщиной 50 мм сплошное под всей конструкцией фундамента
Точки канализации на 1-ом этаже строения (прокладка под пятном застройки и отвод на 2 метра за границу фундамента)
Ввод воды в бойлерную (прокладка ПНД трубы и отвод на 2 метра). Монтаж закладной под ввод электрокабеля
Технологические отверстия под монтаж шахт дымохода и вытяжных вентканалов
Внешние несущие стены: газобетонный блок D500 толщиной 300 мм (ж/б оконные перемычки с U-блоком; монолитный ж/б пояс с утеплением и доборной кладкой)
Внутренние несущие стены: газобетонный блок D500 толщиной 300 мм (ж/б дверные перемычки с U-блоком; монолитный ж/б пояс)
Перекрытие из готовых пустотных ж/б плит. Монолитные участки (бетон М350, толщина 220 мм, двойной арм. каркас, ø12мм, шаг 200 мм, усиления по проекту)
Перекрытие усиленное балочное деревянное (несущие балки 200х50, 200х100, по расчету). Обработка древесины огнебиозащитным составом
Усиленная стропильная система (несущие стропила 150х50, 200х50 мм по расчету, ригели 150х50 мм, контробрешетка 50х50 мм, обрешетка 100х25 мм, мембрана JUTA Ютавек). Обработка древесины огнебиозащитным составом
Устройство покрытия крыши из металлочерепицы (покрытие: полиэстер, полный комплект по проекту)
Входные монолитные ж/б лестницы (крыльца, по проекту)
Полный пакет проектной документации (АР, КЖ, КД)
Гарантия 10 лет на материалы и работы
Все транспортные и погрузочные работы
Независимый технадзор
Работа с опытным архитектором, возможность полностью адаптировать проект под Вас бесплатно
Персональный менеджер по сопровождению стройки
Регулярный фотоотчет по строительству
цена по запросу
Утепленная монолитная ж/б плита с ребрами жесткости вниз (бетон М350, толщина 200 мм, арм. ø12мм, шаг 200 мм; сечение ребер 400х400 мм, арм. Ø12 и 8 мм, шаг 200 мм; песчаная подушка 300 мм). Ленточный монолитный ж/б фундамент под террасу, гараж (при наличии)
Рулонная (наплавляемая) гидроизоляция Стеклоизол ТПП Технониколь (в 2 слоя)
Утепление толщиной 50 мм сплошное под всей конструкцией фундамента
Точки канализации на 1-ом этаже строения (прокладка под пятном застройки и отвод на 2 метра за границу фундамента)
Ввод воды в бойлерную (прокладка ПНД трубы и отвод на 2 метра). Монтаж закладной под ввод электрокабеля
Технологические отверстия под монтаж шахт дымохода и вытяжных вентканалов
Внешние несущие стены: газобетонный блок D500 толщиной 400 мм (ж/б оконные перемычки с U-блоком; монолитный ж/б пояс с утеплением и доборной кладкой)
Внутренние несущие стены: газобетонный блок D500 толщиной 300 мм (ж/б дверные перемычки с U-блоком; монолитный ж/б пояс)
Перегородки из газобетонных блоков D500 толщиной 100 мм
Перекрытие из готовых пустотных ж/б плит. Монолитные участки (бетон М350, толщина 220 мм, двойной арм. каркас, ø12мм, шаг 200 мм, усиления по проекту)
Перекрытие усиленное балочное деревянное (несущие балки 200х50, 200х100, по расчету). Обработка древесины огнебиозащитным составом
Утепление 150 мм плитами из минеральной ваты ROCKWOOL и монтаж защитных мембран JUTA Ютавек, Ютафол
Усиленная стропильная система (несущие стропила 150х50, 200х50 мм по расчету, ригели 150х50 мм, контробрешетка 50х50 мм, обрешетка 100х25 мм, мембрана JUTA Ютавек). Обработка древесины огнебиозащитным составом
Устройство покрытия крыши из металлочерепицы (покрытие: полиэстер, полный комплект по проекту)
Окна и балконные двери пластиковые, профиль REHAU с двухкамерным энергоэффективным стеклопакетом (3 стекла)
Входные монолитные ж/б лестницы (крыльца, по проекту)
Межэтажная монолитная ж/б лестница (по проекту)
Полный пакет проектной документации (АР, КЖ, КД)
Гарантия 10 лет на материалы и работы
Все транспортные и погрузочные работы
Независимый технадзор
Работа с опытным архитектором, возможность полностью адаптировать проект под Вас бесплатно
Персональный менеджер по сопровождению стройки
Регулярный фотоотчет по строительству
цена по запросу
Утепленная монолитная ж/б плита с ребрами жесткости вниз (бетон М350, толщина 200 мм, арм. ø12мм, шаг 200 мм; сечение ребер 400х400 мм, арм. Ø12 и 8 мм, шаг 200 мм; песчаная подушка 300 мм). Ленточный монолитный ж/б фундамент под террасу, гараж (при наличии)
Рулонная (наплавляемая) гидроизоляция Стеклоизол ТПП Технониколь (в 2 слоя)
Утепление толщиной 50 мм сплошное под всей конструкцией фундамента
Точки канализации на 1-ом этаже строения (прокладка под пятном застройки и отвод на 2 метра за границу фундамента)
Ввод воды в бойлерную (прокладка ПНД трубы и отвод на 2 метра). Монтаж закладной под ввод электрокабеля
Монтаж фанового стояка в кирпичной шахте с выводом трубы на крышу
Устройство кирпичной шахты под дымоход с выводом трубы на крышу (по проекту)
Устройство кирпичных шахт вытяжных вентканалов с утеплением холодного контура и выводом трубы на крышу (по проекту)
Внешние несущие стены: газобетонный блок D500 толщиной 400 мм (ж/б оконные перемычки с U-блоком; монолитный ж/б пояс с утеплением и доборной кладкой)
Внутренние несущие стены: газобетонный блок D500 толщиной 300 мм (ж/б дверные перемычки с U-блоком; монолитный ж/б пояс)
Перегородки из газобетонных блоков D500 толщиной 100 мм
Полностью монолитное перекрытие (бетон М350, толщина 200 мм, двойной арм. каркас, ø12мм, шаг 200 мм, усиления по проекту)
Перекрытие усиленное балочное деревянное (несущие балки 200х50, 200х100, по расчету). Обработка древесины огнебиозащитным составом
Утепление 150 мм плитами из минеральной ваты ROCKWOOL и монтаж защитных мембран JUTA Ютавек, Ютафол
Монтаж деревянной обрешетки 40х20 мм (подшив) по низу чердачного перекрытия.
Усиленная стропильная система (несущие стропила 150х50, 200х50 мм по расчету, ригели 150х50 мм, контробрешетка 50х50 мм, обрешетка 100х25 мм, мембрана JUTA Ютавек). Обработка древесины огнебиозащитным составом
Устройство покрытия крыши из металлочерепицы (покрытие: полиэстер, полный комплект по проекту)
Индивидуальная отделка "как на картинке"
Обшивка свесов кровли (включая потолок балконов, террас, крылец) виниловыми софитами или имитацией бруса с тонированием (по проекту)
Устройство водосточной системы (из пластика) по периметру кровли дома для огранизованного сбора дождевой воды с крыши
Окна и балконные двери пластиковые, профиль REHAU с двухкамерным энергоэффективным стеклопакетом (3 стекла)
Входные монолитные ж/б лестницы (крыльца, по проекту)
Межэтажная монолитная ж/б лестница (по проекту)
Полный пакет проектной документации (АР, КЖ, КД)
Гарантия 10 лет на материалы и работы
Все транспортные и погрузочные работы
Независимый технадзор
Работа с опытным архитектором, возможность полностью адаптировать проект под Вас бесплатно
Персональный менеджер по сопровождению стройки
Регулярный фотоотчет по строительству
Схема работы

Звонок в компанию
Позвоните по номеру
+ 7 (952) 374-58-85
или оставьте заявку

Выезд на объект
Выезд нашего специалиста на объект, оценка масштабов и сроков проведения работ и замеры при необходимости

Согласование
Делаем окончательный расчет, согласовываем дату и время проведения работ, подписываем договор

Начало работы
В назначенное время к Вам приезжает бригада и привозят необходимое оборудование и материалы

Приём работы
Сдача объекта в установленные договором сроки, поэтапная оплата за работу

Гарантия
На все проведенные работы мы предоставляем гарантию до 10 лет
Заказать проект дома из газобетона по своему эскизу
Визуализируем Ваши идеи, функционально разместим все необходимые помещения с учетом строительных норм и правил, чтобы обеспечить прочность дома и безопасность проживания в нем. Если вы хотите построить частный или загородный дом своей мечты и представляете его себе во всех деталях, то индивидуальное проектирование будет для вас лучшим решением.
Индивидуальное проектирование
Оставьте заявку на расчет стоимости проекта будущего дома
Остались вопросы?
Давайте обсудим
строительство вашего дома
строительство вашего дома
Проконсультируйтесь бесплатно,
это ни к чему Вас не обязывает!
это ни к чему Вас не обязывает!
Введите свои контакты
и наш специалист проконсультирует Вас в ближайшее время
Похожие Дома из газобетона

















