Дом каркасный №131
Описание
Даже небольшое загородное строение может стать местом, где царят удобство и умиротворение. Компания «СК Альянс Мастеров» предлагает проект, позволяющий воплотить в реальность ваши планы об отдыхе на природе. В кратчайшие сроки, всего за семь дней, будто по взмаху волшебной палочки, из деревянных элементов возводится ваше личное убежище, опирающееся на облегченный фундамент.
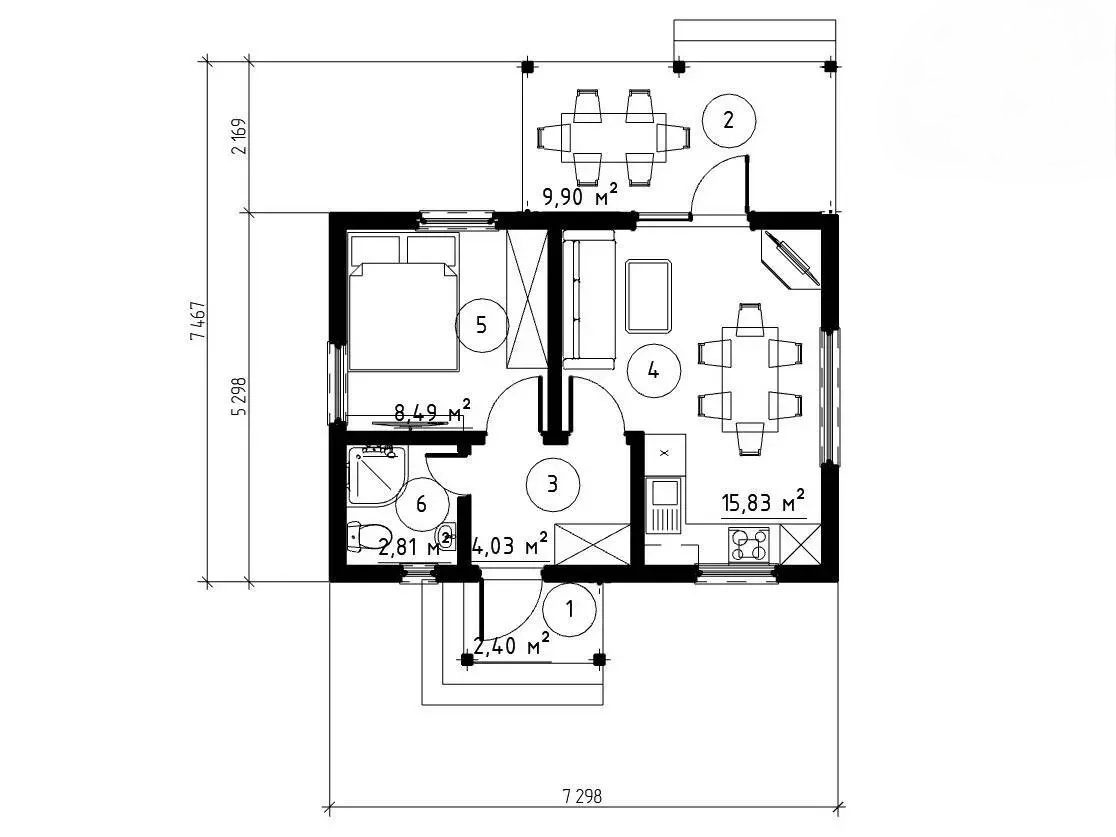
Дом для дачи площадью 7,3*7,5 м² – превосходный выбор для тех, кто хочет наслаждаться летним периодом вдали от шумного города. Это жилье, готовое принять своих хозяев сразу же после завершения строительных работ.
Главное преимущество данного проекта – тщательно разработанная планировка, где каждый квадратный метр служит вашему удобству: уютная комната для отдыха, просторная кухня-гостиная и тамбур, радушно встречающий гостей, подобно прихожей в большом доме. В кухне-гостиной, наполненной естественным светом из трех окон, легко организовать различные функциональные зоны, а удобная веранда с небольшим крыльцом словно создана для приятных чаепитий на свежем воздухе. Отдельно стоит отметить использование высушенной древесины, которая не деформируется при усадке, что позволяет сразу же приступать к отделочным работам после окончания строительства.
«СК Альянс Мастеров» использует только проверенные временем строительные технологии, гарантируя долгий срок службы и надежность вашего дачного строения. Каркас, собранный из качественно обработанного бруса, обеспечивает прочность конструкции, способной противостоять любым погодным условиям. Использование современных утеплителей позволяет поддерживать комфортную температуру внутри помещения даже в холодные вечера, делая его подходящим для проживания не только в летний период, но и в межсезонье.
Особое внимание уделяется тем деталям, которые создают атмосферу уюта и тепла. Окна из дерева с двойным стеклопакетом не только сохраняют тепло, но и наполняют пространство мягким, приглушенным светом. Отделка стен и потолка натуральной вагонкой создает ощущение единения с природой и дарит неповторимый аромат натурального дерева.
«СК Альянс Мастеров» предлагает не просто дачу, а полностью готовое решение для комфортной жизни за городом. Вы можете выбрать один из нескольких доступных вариантов комплектации, найдя оптимальный вариант, соответствующий вашим потребностям и финансовым возможностям. Кроме того, наши специалисты готовы внести изменения в проект, адаптируя его под особенности вашего участка и ваши личные предпочтения.
Мы осознаем, что дачный дом – это не просто постройка, а место, где вы будете проводить время с близкими, наслаждаться тишиной и спокойствием. Именно поэтому мы стремимся создать для вас идеальное пространство, где каждая деталь будет радовать глаз и дарить положительные эмоции. Доверьте строительство вашей дачи профессионалам «СК Альянс Мастеров» и воплотите свою мечту об отдыхе за городом в реальность!
Комплектация каркасных домов
Схема работы

Позвоните по номеру
+ 7 (952) 374-58-85
или оставьте заявку

Выезд нашего специалиста на объект, оценка масштабов и сроков проведения работ и замеры при необходимости

Делаем окончательный расчет, согласовываем дату и время проведения работ, подписываем договор

В назначенное время к Вам приезжает бригада и привозят необходимое оборудование и материалы

Сдача объекта в установленные договором сроки, поэтапная оплата за работу

На все проведенные работы мы предоставляем гарантию до 10 лет
Заказать проект каркасного дома по своему эскизу
Ответы на часто задаваемые вопросы
• Проживание для строителей. Либо его предоставляет Заказчик, либо это наша бытовка (вся информация прописывается в договоре);
• Туалет для строителей. Предоставляется Заказчиком, либо наш вариант – каркасный уличный туалет (вся информация прописывается в договоре);
• Вода – питьевая и техническая;
• Электричество. Обеспечивается Заказчиком, либо наш генератор в аренду;
• Подъезд к участку. Возможность грузовой машине подъехать к участку и разгрузиться – если с этим возникают сложности, то могут потребоваться дополнительные расходы.
Остались вопросы?
строительство вашего дома
это ни к чему Вас не обязывает!






















