Дом каркасный №167
Описание
Простор и Комфорт: Двухэтажный Каркасный Дом для Счастливой Жизни
Представляем вашему вниманию проект двухэтажного дома на основе каркаса, сочетающего в себе современную архитектуру, практичность и уют. С общей площадью в 247 м2 и размерами 11,8 на 14 метров, этот дом станет прекрасным выбором для большой семьи, которая ценит комфорт и пространство.
Архитектурные Решения и Планировочные Решения
Грамотная планировка дома позволяет максимально использовать каждый квадратный метр. На первом этаже находится просторная кухня-гостиная площадью 55,5 м2, где главным элементом является камин, создающий атмосферу тепла и уюта. Панорамное остекление и второй свет наполняют комнату естественным светом, визуально увеличивая пространство и открывая великолепный вид на окружающий пейзаж.
Для тех, кто заботится о здоровье, предусмотрена сауна, где можно расслабиться и восстановить силы после трудного дня. Три ванных комнаты с душевыми кабинами обеспечивают комфорт и удобство для всех членов семьи.
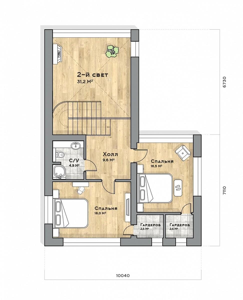
На втором этаже находятся две спальни, предлагающие уединенное место для отдыха и релаксации. Терраса площадью 28,8 м2 и крыльцо площадью 8,1 м2 являются прекрасным дополнением к дому, создавая уютные уголки для отдыха на свежем воздухе.
Персонализированный Подход к Воплощению Ваших Идей
Мы понимаем, что каждый клиент уникален и имеет свое представление об идеальном доме. Именно поэтому мы предлагаем возможность внесения изменений в планировку и комплектацию дома в соответствии с вашими предпочтениями.
Вы можете выбрать толщину стен и кровли, материалы для крыши и фасада, материалы внутренней отделки, окна и двери, а также тип фундамента. Все эти аспекты будут влиять на итоговую цену проекта, позволяя вам оптимизировать свои расходы и создать дом, полностью соответствующий вашим требованиям и бюджету.
Каркасная Технология: Надежность и Экономичность
Каркасная технология строительства обеспечивает быструю скорость возведения, отличные теплоизоляционные характеристики и экономичность. Дом, построенный по этой технологии, будет теплым зимой и прохладным летом, что позволит значительно снизить расходы на отопление и кондиционирование воздуха.
Применение качественных материалов и современных технологий гарантирует долговечность и надежность конструкции, а также ее устойчивость к различным погодным условиям.
Постройте Дом Своей Мечты Вместе с Нами
Мы готовы предложить вам полный спектр услуг по проектированию и строительству двухэтажного каркасного дома вашей мечты. Наши опытные специалисты помогут вам определиться с выбором материалов и комплектации, разработают индивидуальный проект, учитывающий все ваши пожелания, и качественно выполнят все строительные работы.
Свяжитесь с нами сегодня, и мы поможем вам сделать первый шаг к созданию комфортного и уютного дома, который будет радовать вас и вашу семью на протяжении многих лет.
Комплектация каркасных домов
Схема работы

Позвоните по номеру
+ 7 (952) 374-58-85
или оставьте заявку

Выезд нашего специалиста на объект, оценка масштабов и сроков проведения работ и замеры при необходимости

Делаем окончательный расчет, согласовываем дату и время проведения работ, подписываем договор

В назначенное время к Вам приезжает бригада и привозят необходимое оборудование и материалы

Сдача объекта в установленные договором сроки, поэтапная оплата за работу

На все проведенные работы мы предоставляем гарантию до 10 лет
Заказать проект каркасного дома по своему эскизу
Ответы на часто задаваемые вопросы
• Проживание для строителей. Либо его предоставляет Заказчик, либо это наша бытовка (вся информация прописывается в договоре);
• Туалет для строителей. Предоставляется Заказчиком, либо наш вариант – каркасный уличный туалет (вся информация прописывается в договоре);
• Вода – питьевая и техническая;
• Электричество. Обеспечивается Заказчиком, либо наш генератор в аренду;
• Подъезд к участку. Возможность грузовой машине подъехать к участку и разгрузиться – если с этим возникают сложности, то могут потребоваться дополнительные расходы.
Остались вопросы?
строительство вашего дома
это ни к чему Вас не обязывает!















