Дом каркасный №54
Описание
Данный архитектурный замысел – это квинтэссенция эстетики, прочности и практичности. В нем гармонично переплетаются традиционные архитектурные решения и лаконичность, что придает ему неповторимый облик. Этот одноэтажный дом, возведенный по каркасной технологии, прекрасно подходит для постоянного проживания семьи из четырёх-пяти человек.
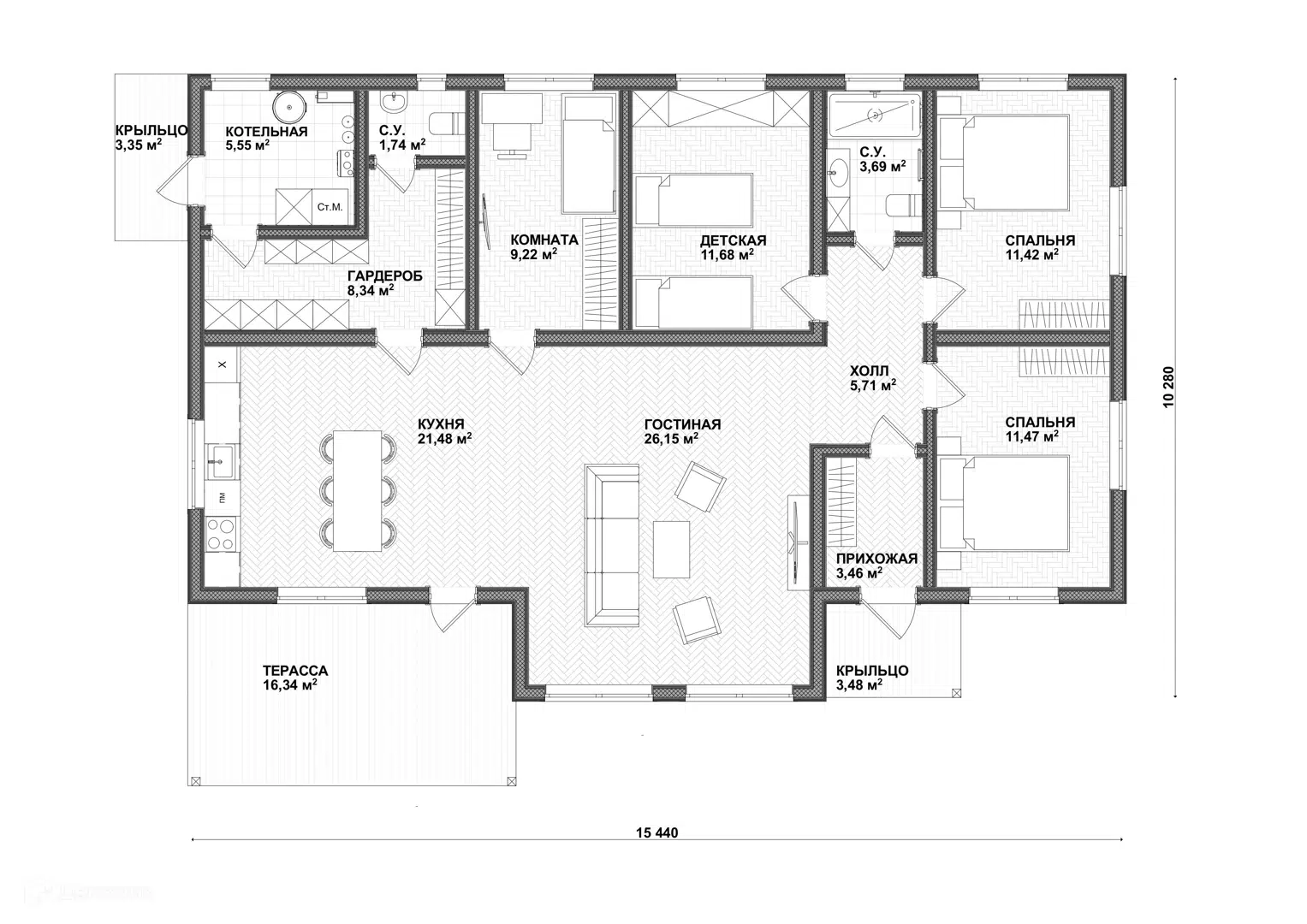
Проект жилья разработан с учетом современных семейных нужд. Он включает в себя просторную кухню-гостиную, четыре отдельных комнаты, две ванные комнаты и помещение для котельной. Это позволяет создать уютную и комфортную среду для жизни. По желанию, одно из помещений можно адаптировать под сауну.
Отличительной чертой дома является его тщательная проработка всех деталей. В нем предусмотрена большая терраса, где можно наслаждаться свежим воздухом и живописными видами. Разнообразные варианты комплектации дома позволяют создать идеальное место для жизни, где каждому члену семьи будет комфортно и удобно.
Дом построен с использованием каркасной технологии, что существенно сокращает сроки строительства и обеспечивает отличные показатели теплоизоляции. Применение современных материалов и технологий позволяет значительно снизить расходы на обогрев в зимний период и кондиционирование воздуха летом. Это делает дом не только экономичным в использовании, но и экологически чистым.
Внутренняя отделка дома выполнена в светлой цветовой гамме, что визуально увеличивает пространство и наполняет его светом. Большие окна обеспечивают обильное естественное освещение в течение дня. Рациональная планировка позволяет максимально эффективно использовать каждый квадратный метр площади.
Это не просто жилище, это место зарождения теплых воспоминаний. Здесь каждый найдет себе тихий уголок для отдыха и релаксации. Просторная гостиная станет местом для семейных встреч и торжеств, а уютные спальни – оазисом спокойного сна и восстановления сил.
Выбирая этот проект, вы выбираете комфорт, уют и современный образ жизни. Это вложение в будущее вашей семьи, которое будет радовать вас долгие годы. Дом, в который хочется возвращаться снова и снова.
Комплектация каркасных домов
Схема работы

Позвоните по номеру
+ 7 (952) 374-58-85
или оставьте заявку

Выезд нашего специалиста на объект, оценка масштабов и сроков проведения работ и замеры при необходимости

Делаем окончательный расчет, согласовываем дату и время проведения работ, подписываем договор

В назначенное время к Вам приезжает бригада и привозят необходимое оборудование и материалы

Сдача объекта в установленные договором сроки, поэтапная оплата за работу

На все проведенные работы мы предоставляем гарантию до 10 лет
Заказать проект каркасного дома по своему эскизу
Ответы на часто задаваемые вопросы
• Проживание для строителей. Либо его предоставляет Заказчик, либо это наша бытовка (вся информация прописывается в договоре);
• Туалет для строителей. Предоставляется Заказчиком, либо наш вариант – каркасный уличный туалет (вся информация прописывается в договоре);
• Вода – питьевая и техническая;
• Электричество. Обеспечивается Заказчиком, либо наш генератор в аренду;
• Подъезд к участку. Возможность грузовой машине подъехать к участку и разгрузиться – если с этим возникают сложности, то могут потребоваться дополнительные расходы.
Остались вопросы?
строительство вашего дома
это ни к чему Вас не обязывает!














