Дом каркасный №67
Описание
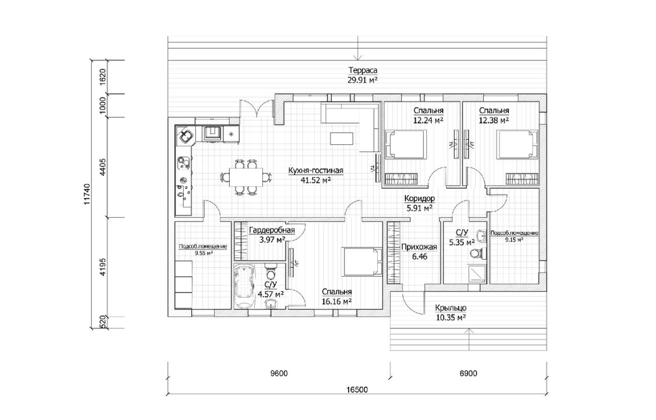
Финский каркасный дом размером 11,7х16,5 метра: воплощение комфорта в гармонии с природой.
Представьте себе тишину, лишь изредка прерываемую шелестом листьев, и ваш дом, словно сошедший со страниц сказки. Этот одноэтажный каркасный дом – не просто строение, а воплощенная мечта об уюте и спокойствии. На площади в 145 квадратных метров каждая деталь тщательно продумана для создания идеального пространства для семьи.
Планировка, созданная для гармонии
Два санузла, как источники свежести, избавят от утренней спешки. Три спальни, включая мастер-спальню, – тихие уголки, где сон будет крепким, а пробуждение – приятным. И, конечно, главная комната – просторная гостиная, объединенная с кухней, где камин станет центром притяжения для близких и друзей.
Терраса и крыльцо: близость к природе
Терраса площадью 30 квадратных метров – ваш личный выход в мир природы. Здесь, под нежным солнцем или в тепле пледа, можно наслаждаться каждым моментом. А крытое крыльцо площадью 10 квадратных метров радушно встретит ваших гостей.
Панорамные окна: море света
Огромные панорамные окна наполняют дом светом и теплом. Стены словно исчезают, стирая границу между внутренним пространством и окружающим миром. Вы сможете любоваться восходами и закатами, не вставая с любимого кресла.
Дом, созданный по вашим предпочтениям
Мы понимаем, что ваш дом – это отражение вашей личности. Поэтому предлагаем вам участвовать в создании проекта, вносите изменения в планировку, выбирайте материалы, экспериментируйте с цветами и текстурами. Толщина стен и кровли, фасадные и кровельные материалы, внутренняя отделка, окна и двери, тип фундамента – все под вашим контролем. Окончательная цена проекта будет зависеть от вашего выбора.
Ваш дом – ваша история
Позвольте нам помочь вам создать эту историю. Наша команда профессионалов бережно и внимательно учтет все ваши пожелания, воплощая ваши мечты в жизнь. Создайте свой райский уголок, где каждая деталь будет радовать глаз и согревать душу!
Комплектация каркасных домов
Схема работы

Позвоните по номеру
+ 7 (952) 374-58-85
или оставьте заявку

Выезд нашего специалиста на объект, оценка масштабов и сроков проведения работ и замеры при необходимости

Делаем окончательный расчет, согласовываем дату и время проведения работ, подписываем договор

В назначенное время к Вам приезжает бригада и привозят необходимое оборудование и материалы

Сдача объекта в установленные договором сроки, поэтапная оплата за работу

На все проведенные работы мы предоставляем гарантию до 10 лет
Заказать проект каркасного дома по своему эскизу
Ответы на часто задаваемые вопросы
• Проживание для строителей. Либо его предоставляет Заказчик, либо это наша бытовка (вся информация прописывается в договоре);
• Туалет для строителей. Предоставляется Заказчиком, либо наш вариант – каркасный уличный туалет (вся информация прописывается в договоре);
• Вода – питьевая и техническая;
• Электричество. Обеспечивается Заказчиком, либо наш генератор в аренду;
• Подъезд к участку. Возможность грузовой машине подъехать к участку и разгрузиться – если с этим возникают сложности, то могут потребоваться дополнительные расходы.
Остались вопросы?
строительство вашего дома
это ни к чему Вас не обязывает!












