Дом каркасный №71
Описание
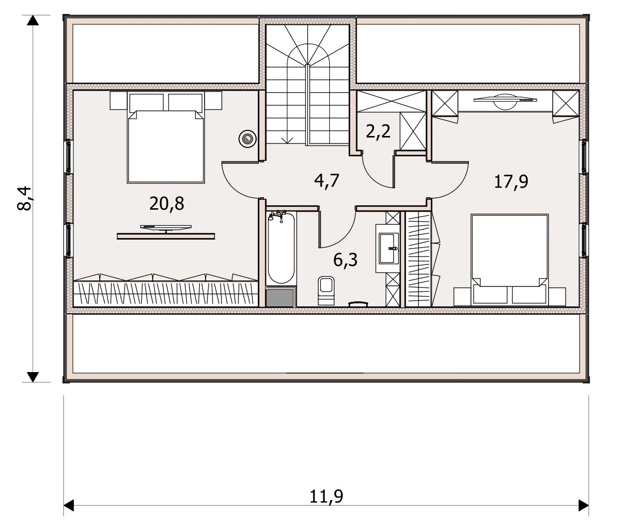
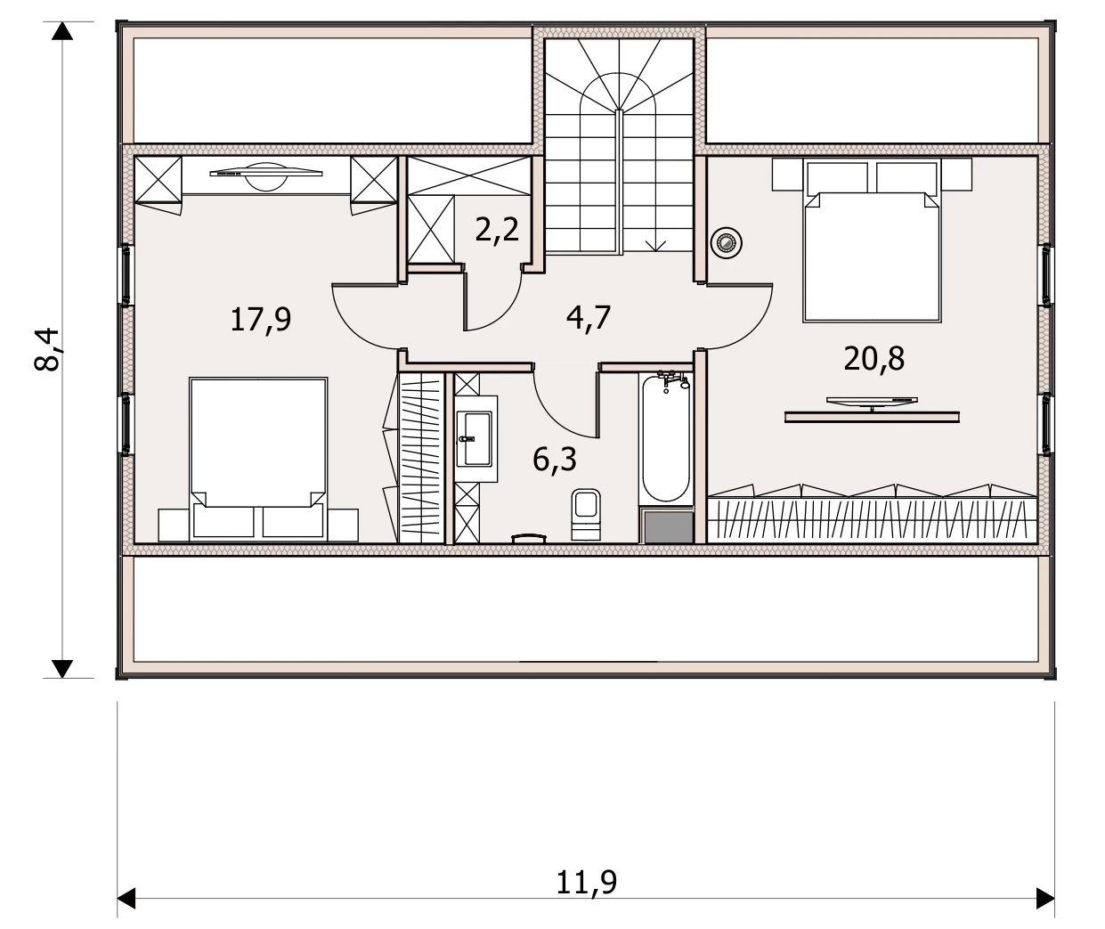
Возведенный по финской методике, этот двухэтажный дом с каркасной конструкцией представляет собой комфортабельный коттедж с традиционной двухскатной кровлей. Его сдержанный внешний вид, дополненный привлекательным крыльцом и высокими оконными проемами, излучает безмятежность и гармонию. Разумная и практичная планировка отличает этот дом, а его простота и изысканность в каждой детали добавляют актуального очарования. Общая площадь в 162 квадратных метра позволяет организовать максимально удобное для жизни пространство.
Внутри этого теплого и безопасного жилища предусмотрено все необходимое для комфортного пребывания семьи, насчитывающей от 4 до 6 человек. Большая гостиная с камином естественно переходит в удобную кухню, четыре светлые спальни создают ощущение уюта, а современные ванные комнаты повышают комфорт. Котельная, с отдельным входом со двора, упрощает обслуживание отопительной системы и передвижение между домом и территорией. Гостиная и кухонная зона могут быть как объединены в одно помещение, так и разделены, в соответствии с предпочтениями владельцев.
Главный вход украшает веранда с элегантным козырьком, зазывающая посетителей в этот теплый уголок. При необходимости, на первом этаже одну из спален можно трансформировать в сауну.
Этот проект – это проверенное и практичное решение для молодых семей, пар с детьми и тех, кто превыше всего ставит удобство, стабильность и надежность. Выбрав его, вы получите не только уютное, стильное и экономичное жилье, но и обретете место, куда всегда будет приятно возвращаться. Дом, где всегда царят тепло, умиротворение и любовь.
Комплектация каркасных домов
Схема работы

Позвоните по номеру
+ 7 (952) 374-58-85
или оставьте заявку

Выезд нашего специалиста на объект, оценка масштабов и сроков проведения работ и замеры при необходимости

Делаем окончательный расчет, согласовываем дату и время проведения работ, подписываем договор

В назначенное время к Вам приезжает бригада и привозят необходимое оборудование и материалы

Сдача объекта в установленные договором сроки, поэтапная оплата за работу

На все проведенные работы мы предоставляем гарантию до 10 лет
Заказать проект каркасного дома по своему эскизу
Ответы на часто задаваемые вопросы
• Проживание для строителей. Либо его предоставляет Заказчик, либо это наша бытовка (вся информация прописывается в договоре);
• Туалет для строителей. Предоставляется Заказчиком, либо наш вариант – каркасный уличный туалет (вся информация прописывается в договоре);
• Вода – питьевая и техническая;
• Электричество. Обеспечивается Заказчиком, либо наш генератор в аренду;
• Подъезд к участку. Возможность грузовой машине подъехать к участку и разгрузиться – если с этим возникают сложности, то могут потребоваться дополнительные расходы.
Остались вопросы?
строительство вашего дома
это ни к чему Вас не обязывает!
















