СК Альянс Мастеров
Строительная компания
СПб, БЦ "Реформа", ул. Придорожная
аллея, дом 8, офис 428, 400
Электронный адрес
a.m.89523745885@yandex.ru
Пн-вскр: с 10:00 до 22:00
Телефон для связи
+7 (952) 374-58-85
Главная страница » Дома » Каркасные дома » Дом каркасный №169

Дом каркасный №169

3 384 000 ₽
Стоимость зависит от комплектации
Размеры 10,4х12,1
Площадь 188м²
Получите консультацию
Оставьте свой номер телефона и наш специалист свяжется с вами в ближайшее время!

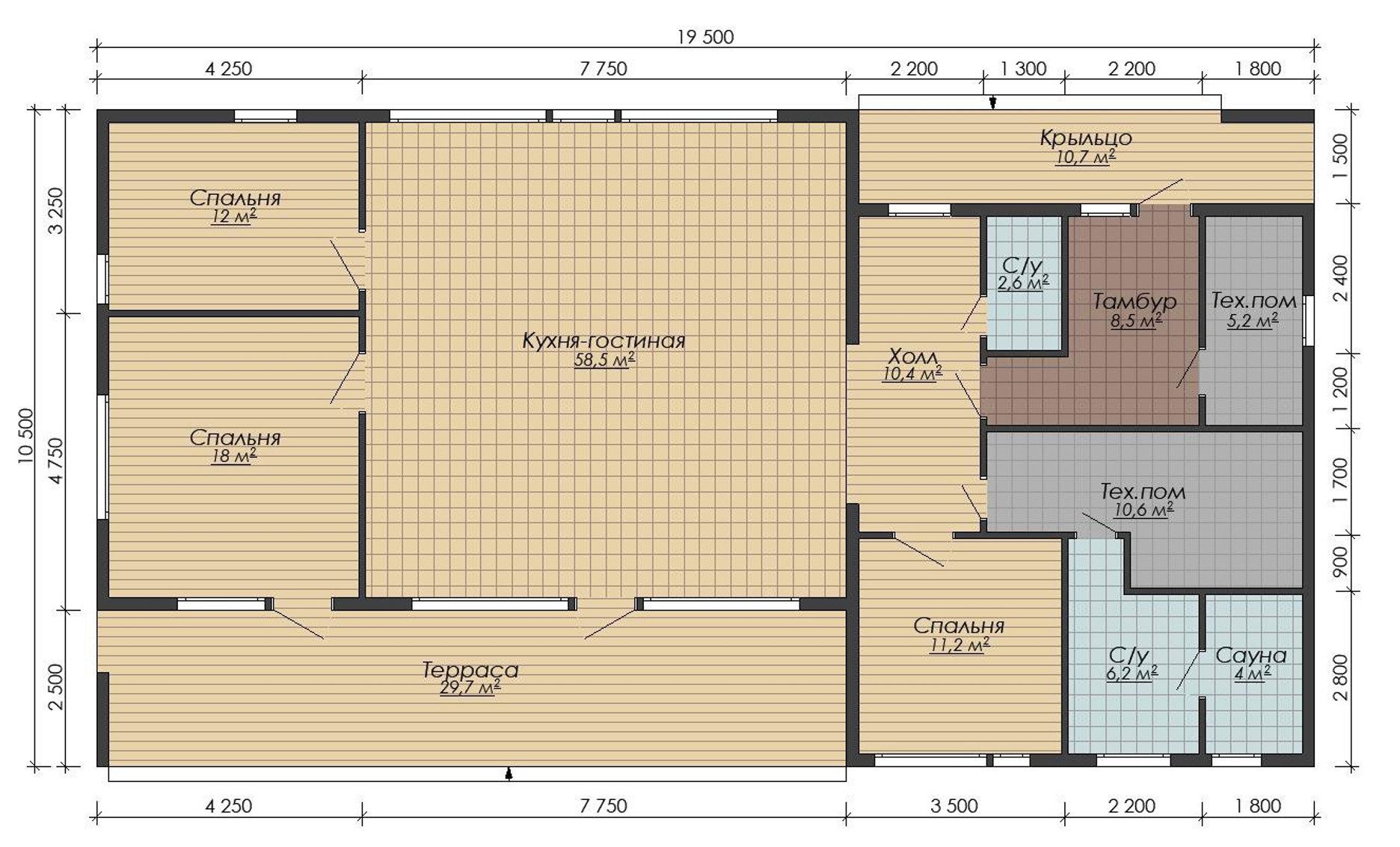
Планировки

Описание

Просторный коттедж, занимающий 188 квадратных метров, представляет собой воплощение комфорта и современного дизайна. Центральным элементом является объединенная гостиная с камином и кухонная зона, занимающая 55,4 квадратных метра. Прилегающие террасы и балконы – прекрасное дополнение, позволяющее насладиться окружающей природой и свежим воздухом. Две ванные комнаты избавляют от утренней суеты. Спальни с удобством разместят как семью, так и приглашенных. Панорамное остекление зрительно объединяет внутреннее пространство жилища с окружающей средой, наполняя его светом и ощущением свободы. Завершает архитектурный облик плоская крыша, выбор которой продиктован как эстетическими, так и практическими соображениями: это современное решение, придающее дому минималистичный и ультрасовременный вид, подчеркивая его элегантность и лаконичность; рациональное использование площади, так как крыша может стать дополнительной территорией – зоной отдыха на открытом воздухе или садом; простота обслуживания, обеспечивающая легкий и безопасный доступ к различным инженерным коммуникациям; безопасность в эксплуатации, так как конструкция учитывает все возможные нагрузки, исключая риск лавинообразного схода снега в зимний период; и экономичность, поскольку установка и материалы обходятся выгоднее, чем скатные крыши.

По желанию, на первом этаже можно оборудовать сауну для релаксации и оздоровления.

В этом доме каждая деталь тщательно продумана, чтобы создать атмосферу гармонии и уюта. Высокие потолки усиливают ощущение простора, а изысканная отделка подчеркивает хороший вкус владельцев. Здесь царит атмосфера покоя и комфорта, располагающая к семейным ужинам, приему гостей и наслаждению каждым мгновением жизни.

Особое внимание уделено энергоэффективности. Инновационные системы отопления и вентиляции, а также качественная теплоизоляция позволяют значительно сократить расходы на коммунальные услуги и поддерживать комфортный микроклимат круглый год. Интеллектуальные системы интегрированы в управление домом, обеспечивая максимальный комфорт и безопасность.

Прилегающая территория гармонично дополняет архитектурный стиль коттеджа. Ландшафтный дизайн, выдержанный в едином стиле, создает атмосферу спокойствия и единения с природой. Здесь найдется место для детских игр, приготовления барбекю и отдыха на свежем воздухе.

Этот дом – не просто жилье, это отражение индивидуальности и стремления к совершенству. Это место, где воплощаются мечты и рождаются новые истории. Это дом, в котором хочется жить и которым хочется любоваться.

Комплектация каркасных домов

Наименование
Холодный контур (силовой каркас)
Теплый контур (внешняя отделка с утеплением)
Дом с внутренней отделкой
"Под ключ" (с инженерией)
3 384 000 ₽
по запросу
по запросу
по запросу
Каркас внешних несущих стен: Сухая строганная доска 45х145мм
Каркас внутренних несущих стен и перегородок: Сухая строганная доска 45х95/145мм
Балки межэтажного перекрытия: Сухая строганная доска 45х195мм (в зависимости от пролетов возможно использование двутавровых деревянных балок)
Настил чернового пола 2 эт.: Фанера ФСФ, 18мм
Стропильная система: Сухая строганная доска 45х195мм
Элементы усиления каркаса: LVL, клееные балки
Лестница межэтажная: временная строительная
Комплектующие для сборки домокомплекта: Уголки, пластины, метизы, спец.крепеж
Ветровлагозащита кровельная
Контробрешетка: Сухой строганный брусок 45х45мм
Обрешетка: Сухая строганная доска 20х95мм
Металлочерепица с доборными элементами Grandline
Плитная обшивка (ветровлагозащита и утепление фасада): Белтермо ТОП, 25 мм
Рейка для вентзазора (контробрешетка): Сухой строганный брусок 20х45мм
Отделка фасада: Имитация бруса 20мм
Оформление оконных, дверных проемов, углов, лобовых и карнизных досок, подшив свесов кровли: Сухая строганная доска 20х95мм
Ограждающие элементы террас и балконов: Сухая строганная доска
Настил террас/балконов: Террасная доска 27х143мм (Вельвет), Лиственница
Водосточная система: Водосточная система Docke Premium (пластик)
Покраска фасада и всех элементов экстерьера: краска Teknos
Утепление внешнего контура: базальтовые плиты Rockwool
Пароизоляция внешнего контура с проклейкой швов (создание герметичного контура)
Окна: металлопластивковые Rehau (белый), профиль 70мм, с двухкамерным стеклопакетом и металлическим отливом
Дверь входная: металлическая (Россия), 4 класс защиты
Межкомнатные двери: ламинированные с фурнитурой
Настил чернового пола 1 эт.: Фанера ФСФ, 18мм (при плитном фундаменте не укладывается)
Звукоизоляция внутренних стен, перегородок и перекрытий: базальтовый плиты Rockwool
Устройство вент.зазора (стены, потолок): Сухой строганный брусок 20х45/95мм
Внутренняя отделка стен и потолка: Вагонка 13х122мм (хвоя), "Штиль"/Гипсокартон стронг 15мм
Оформление окон (подоконники, наличники), монтаж углов, плинтусов, галтелей
Вентиляция (естественная/принудительная/с рекуперацией тепла)
Канализация (монтаж инженерной сантехники, установка септика/ЛОС)
Водоснабжение (обустройство колодца/скважины, монтаж труб ХВС и ГВС)
Электрика (электротехнические работы)
Отопление (котельная, монтаж радиаторов, систем "теплого пола")
3 384 000 ₽
Каркас внешних несущих стен: Сухая строганная доска 45х145мм
Каркас внутренних несущих стен и перегородок: Сухая строганная доска 45х95/145мм
Балки межэтажного перекрытия: Сухая строганная доска 45х195мм (в зависимости от пролетов возможно использование двутавровых деревянных балок)
Настил чернового пола 2 эт.: Фанера ФСФ, 18мм
Стропильная система: Сухая строганная доска 45х195мм
Элементы усиления каркаса: LVL, клееные балки
Лестница межэтажная: Временная строительная
Комплектующие для сборки домокомплекта: Уголки, пластины, метизы, спец.крепеж
Ветровлагозащита кровельная
Контробрешетка: Сухой строганный брусок 45х45мм
Обрешетка: Сухая строганная доска 20х95мм
Металлочерепица с доборными элементами Grandline
Плитная обшивка (ветровлагозащита и утепление фасада): Белтермо ТОП, 25 мм
цена по запросу
Каркас внешних несущих стен: Сухая строганная доска 45х145мм
Каркас внутренних несущих стен и перегородок: Сухая строганная доска 45х95/145мм
Балки межэтажного перекрытия: Сухая строганная доска 45х195мм (в зависимости от пролетов возможно использование двутавровых деревянных балок)
Настил чернового пола 2 эт.: Фанера ФСФ, 18мм
Стропильная система: Сухая строганная доска 45х195мм
Элементы усиления каркаса: LVL, клееные балки
Лестница межэтажная: Временная строительная
Комплектующие для сборки домокомплекта: Уголки, пластины, метизы, спец.крепеж
Ветровлагозащита кровельная
Контробрешетка: Сухой строганный брусок 45х45мм
Обрешетка: Сухая строганная доска 20х95мм
Металлочерепица с доборными элементами Grandline
Плитная обшивка (ветровлагозащита и утепление фасада): Белтермо ТОП, 25 мм
Рейка для вентзазора (контробрешетка): Сухой строганный брусок 20х45мм
Отделка фасада: Имитация бруса 20мм
Оформление оконных, дверных проемов, углов, лобовых и карнизных досок, подшив свесов кровли: Сухая строганная доска 20х95мм
Ограждающие элементы террас и балконов: Сухая строганная доска
Настил террас/балконов: Террасная доска 27х143мм (Вельвет), Лиственница
Водосточная система: Водосточная система Docke Premium (пластик)
Покраска фасада и всех элементов экстерьера: краска Teknos
Утепление внешнего контура: базальтовые плиты Rockwool
Пароизоляция внешнего контура с проклейкой швов (создание герметичного контура)
Окна: металлопластивковые Rehau (белый), профиль 70мм, с двухкамерным стеклопакетом и металлическим отливом
Дверь входная: металлическая (Россия), 4 класс защиты
цена по запросу
Каркас внешних несущих стен: Сухая строганная доска 45х145мм
Каркас внутренних несущих стен и перегородок: Сухая строганная доска 45х95/145мм
Балки межэтажного перекрытия: Сухая строганная доска 45х195мм (в зависимости от пролетов возможно использование двутавровых деревянных балок)
Настил чернового пола 2 эт.: Фанера ФСФ, 18мм
Стропильная система: Сухая строганная доска 45х195мм
Элементы усиления каркаса: LVL, клееные балки
Лестница межэтажная: Временная строительная
Комплектующие для сборки домокомплекта: Уголки, пластины, метизы, спец.крепеж
Ветровлагозащита кровельная
Контробрешетка: Сухой строганный брусок 45х45мм
Обрешетка: Сухая строганная доска 20х95мм
Металлочерепица с доборными элементами Grandline
Плитная обшивка (ветровлагозащита и утепление фасада): Белтермо ТОП, 25 мм
Рейка для вентзазора (контробрешетка): Сухой строганный брусок 20х45мм
Отделка фасада: Имитация бруса 20мм
Оформление оконных, дверных проемов, углов, лобовых и карнизных досок, подшив свесов кровли: Сухая строганная доска 20х95мм
Ограждающие элементы террас и балконов: Сухая строганная доска
Настил террас/балконов: Террасная доска 27х143мм (Вельвет), Лиственница
Водосточная система: Водосточная система Docke Premium (пластик)
Покраска фасада и всех элементов экстерьера: краска Teknos
Утепление внешнего контура: базальтовые плиты Rockwool
Пароизоляция внешнего контура с проклейкой швов (создание герметичного контура)
Окна: металлопластивковые Rehau (белый), профиль 70мм, с двухкамерным стеклопакетом и металлическим отливом
Дверь входная: металлическая (Россия), 4 класс защиты
Межкомнатные двери: ламинированные с фурнитурой
Настил чернового пола 1 эт.: Фанера ФСФ, 18мм (при плитном фундаменте не укладывается)
Звукоизоляция внутренних стен, перегородок и перекрытий: базальтовый плиты Rockwool
Устройство вент.зазора (стены, потолок): Сухой строганный брусок 20х45/95мм
Внутренняя отделка стен и потолка: Вагонка 13х122мм (хвоя), "Штиль"/Гипсокартон стронг 15мм
Оформление окон (подоконники, наличники), монтаж углов, плинтусов, галтелей
цена по запросу
Каркас внешних несущих стен: Сухая строганная доска 45х145мм
Каркас внутренних несущих стен и перегородок: Сухая строганная доска 45х95/145мм
Балки межэтажного перекрытия: Сухая строганная доска 45х195мм (в зависимости от пролетов возможно использование двутавровых деревянных балок)
Настил чернового пола 2 эт.: Фанера ФСФ, 18мм
Стропильная система: Сухая строганная доска 45х195мм
Элементы усиления каркаса: LVL, клееные балки
Лестница межэтажная: Временная строительная
Комплектующие для сборки домокомплекта: Уголки, пластины, метизы, спец.крепеж
Ветровлагозащита кровельная
Контробрешетка: Сухой строганный брусок 45х45мм
Обрешетка: Сухая строганная доска 20х95мм
Металлочерепица с доборными элементами Grandline
Плитная обшивка (ветровлагозащита и утепление фасада): Белтермо ТОП, 25 мм
Рейка для вентзазора (контробрешетка): Сухой строганный брусок 20х45мм
Отделка фасада: Имитация бруса 20мм
Оформление оконных, дверных проемов, углов, лобовых и карнизных досок, подшив свесов кровли: Сухая строганная доска 20х95мм
Ограждающие элементы террас и балконов: Сухая строганная доска
Настил террас/балконов: Террасная доска 27х143мм (Вельвет), Лиственница
Водосточная система: Водосточная система Docke Premium (пластик)
Покраска фасада и всех элементов экстерьера: краска Teknos
Утепление внешнего контура: базальтовые плиты Rockwool
Пароизоляция внешнего контура с проклейкой швов (создание герметичного контура)
Окна: металлопластивковые Rehau (белый), профиль 70мм, с двухкамерным стеклопакетом и металлическим отливом
Дверь входная: металлическая (Россия), 4 класс защиты
Межкомнатные двери: ламинированные с фурнитурой
Настил чернового пола 1 эт.: Фанера ФСФ, 18мм (при плитном фундаменте не укладывается)
Звукоизоляция внутренних стен, перегородок и перекрытий: базальтовый плиты Rockwool
Устройство вент.зазора (стены, потолок): Сухой строганный брусок 20х45/95мм
Внутренняя отделка стен и потолка: Вагонка 13х122мм (хвоя), "Штиль"/Гипсокартон стронг 15мм
Оформление окон (подоконники, наличники), монтаж углов, плинтусов, галтелей
Вентиляция (естественная/принудительная/с рекуперацией тепла)
Канализация (монтаж инженерной сантехники, установка септика/ЛОС)
Водоснабжение (обустройство колодца/скважины, монтаж труб ХВС и ГВС)
Электрика (электротехнические работы)
Отопление (котельная, монтаж радиаторов, систем "теплого пола")

Схема работы

Звонок в компанию

Позвоните по номеру
+ 7 (952) 374-58-85
или оставьте заявку

Выезд на объект

Выезд нашего специалиста на объект, оценка масштабов и сроков проведения работ и замеры при необходимости

Согласование

Делаем окончательный расчет, согласовываем дату и время проведения работ, подписываем договор

Начало работы

В назначенное время к Вам приезжает бригада и привозят необходимое оборудование и материалы

Приём работы

Сдача объекта в установленные договором сроки, поэтапная оплата за работу

Гарантия

На все проведенные работы мы предоставляем гарантию до 10 лет

Заказать проект каркасного дома по своему эскизу

Визуализируем Ваши идеи, функционально разместим все необходимые помещения с учетом строительных норм и правил, чтобы обеспечить прочность дома и безопасность проживания в нем. Если вы хотите построить частный или загородный дом своей мечты и представляете его себе во всех деталях, то индивидуальное проектирование будет для вас лучшим решением.
Индивидуальное проектирование
Оставьте заявку на расчет стоимости проекта будущего дома

Ответы на часто задаваемые вопросы

Если у вас остались вопросы по строительству - звоните по телефону +7 (952) 374-58-85
В среднем проект готовится за 2 недели, но согласования Архитектурной части может занять некоторое время из-за правок от Заказчиков, также на сроки влияет сезон, поэтому если вы планируете строить дом в июне, то проектом лучше заняться в апреле.
Да, такое возможно. Но необходимо учитывать, что проекты бывают от не совсем опытных специалистов, поэтому наши проектировщики всегда смогут дать грамотную оценку и советы по улучшению вашего индивидуального проекта.
Да, конечно же, можем. К нам часто обращаются заказчики с примерами домов, на основе которых они хотели бы построить собственный. Индивидуальное проектирование отличное решение и оказываем мы данную услугу бесплатно. Наши архитекторы и проектировщики выяснят ваши потребности и дадут важные профессиональные рекомендации, создадут 3D модели будущего дома с учетом всех пожеланий и особенностей земельного участка.
Да, мы можем изменить любой из проектов по Вашим пожеланиям. Можно изменить планировку, количество либо расположение окон и дверей, добавить террасу и прочие Ваши пожелания осуществляются в проектном отделе. Вы можете выбрать одну из популярных комплектаций домов. А так же обратиться за помощью к нашим специалистам и подобрать комплектацию индивидуально. Возможны любые изменения комплектации дома: утепление, внутренняя и внешняя отделка, кровля и так далее.
Мы строим дома не только по типовому проекту, но также занимаемся индивидуальной разработкой. Причём есть возможность отправить свою идею или готовый эскиз. Наш проектировщик разработает не его основе проект, все детали будут согласованы с заказчиком.
Да, у нас есть грамотные архитекторы, дизайнеры и инженеры, которые могут разработать индивидуальный проект дома со всеми коммуникациями.
Все обозначения на планировке условны. Назначение любого помещения может быть изменено в соответствии с вашим желанием.
Внутренние перегородки каркасного дома не являются несущими элементами. За счет этого можно вносить изменения в планировку пространства на любом этапе строительства. В брусовом доме возможность перепланировки усложняется, так как может снизиться несущая способность стен.
Да, мы делаем фундаменты круглый год, но в зимнее время стоимость фундамента может немного увеличиться, т.к. требуется дополнительный прогрев для монолитной плиты и расчистка участка от снега.
Выбор фундамента зависит от типа почвы на участке, где планируется стройка и от выбора строительного материала Вашего дома. Нужно вызвать эксперта на пробник почвы и Вам подскажут, что Вам подходит. Для наших домов подходит большое кол-во вариантов фундамента: Свайно-винтовой, Железобетонные сваи, Монолитная плита, Утепленная финская плита
Конструкция каркасного дома имеет небольшой вес. За счет этого снижается сложность строительства. Для таких строений подходят разные типы фундаментов, включая столбчатые, свайные, ленточные и монолитные плиты.
Оптимальным решением в соотношение цены и качества мы рекомендуем использование винтовых или железобетонных свай для строительства каркасного дома. Вопрос выбора фундамента в большей степени зависит от несущей способности и особенностей Вашего грунта. Данные виды фундаментов мы используем на практике более 10 лет и уверены в данном техническом решении.
Да, мы можем построить дом на готовом фундаменте. И чтобы быть уверенными в качестве и обеспечить вам гарантию на все строение, мы обязательно проводим экспертизу. При необходимости возможно модернизировать или достроить ваш фундамент.
Наша компания подходит индивидуально к каждому клиенту. Схема под планировку дома согласуется заранее.
У нашей компании есть возможность подписать с Заказчиком договор дистанционно. Со стороны заказчика достаточно прислать скан подписанных страниц Договора
Нет, мы подписываем с Вами договор, в котором указываем стоимость на дату подписания. После внесения части оплаты мы приобретаем необходимый объем строительных материалов, что исключает повышения цен на них в сложной экономической ситуации. И Вы гарантированно получаете фиксированную стоимость строительства каркасного дома под ключ.
Условия строительства, учесть заранее:

• Проживание для строителей. Либо его предоставляет Заказчик, либо это наша бытовка (вся информация прописывается в договоре);
• Туалет для строителей. Предоставляется Заказчиком, либо наш вариант – каркасный уличный туалет (вся информация прописывается в договоре);
• Вода – питьевая и техническая;
• Электричество. Обеспечивается Заказчиком, либо наш генератор в аренду;
• Подъезд к участку. Возможность грузовой машине подъехать к участку и разгрузиться – если с этим возникают сложности, то могут потребоваться дополнительные расходы.
После того как мы утверждаем с Вами проект, смету в которой указывается окончательная цена строительства каркасного дома, мы предоставляем договор. В нем будет указано поэтапное внесение оплаты, а также сроки исполнения, акты приема работ и гарантии.
Да, это возможно. В зависимости от проекта и возможностей Заказчика стройку можно разделить на несколько этапов, например: фундамент и силовой каркас с крышей делается в первый сезон; во второй сезон делается утепление, окна, двери, часть наружной отделки; в третий сезон делаются инженерные сети и внутренняя отделка.
Если кратко, то мы всегда придерживаемся баланса, предлагая качество по доступной стоимости, прозрачно указывая на плюсы и минусы возможных решений. Каждый случай индивидуален, поэтому рекомендуем связаться с нами удобным способом. Мы не даем пустых обещаний и в случае совсем небольших финансовых возможностей рекомендуем подкопить средства либо воспользоваться частичным кредитованием. Это распространенная дилемма многих заказчиков. Конечно же, в целях рациональной экономии большинство хотят построить каркасный дом недорого, но здесь важно подумать о дальнейшей эксплуатации. Если вам предлагают строительство под ключ значительно ниже среднерыночной стоимости в Казани, то необходимо обратить внимание на предлагаемые материалы в комплектации и опыт строительной бригады. Дешевые материалы либо неквалифицированные технические решения могут привести к аварийным ситуациям, исправление которых может потребовать еще до 30% вложений от изначальной сметы. Такие ситуации зачастую возникают спустя гарантийный срок, и оплачивать ремонт придется вам.
Да, есть возможность делать полный цикл работ вплоть до постановки дома на учет.
Да, конечно. Наши бригады устанавливают печи, занимаются покраской как скрытых элелементов строения, так и наружной его части. Эти и дополнительные работы в виде монтажа коммуникаций (электрика, водоснабжение и др.), Вы также можете обсудить с нашим менеджером.
Итоговый внешний вид дома может отличаться от визуализации проекта на сайте. Визуализация показывает один из возможных вариантов внешнего вида построенного дома.
После утверждения проекта до сдачи здания заказчику проходит в среднем 3-3,5 месяца. Все зависит от площади возводимого сооружения и архитектурной сложности. Не требуется дополнительного времени для «выстаивания» строения. Внутренние отделочные работы можно выполнять практически сразу же после окончания сборки конструкции. Оперативность – это неоспоримое преимущество каркасных домов в отличии от классических технологий домостроения, они возводятся за короткий промежуток времени и отвечают всем стандартам надежности, комфорта и безопасности.
В среднем время строительства дома по любым линейным размерам занимает не более 3 месяцев. Точные сроки определяются особенностями проекта. Сообщите нам какой проект Вы выбрали, чтобы получить детальную информацию.
Гарантия составляет до 5 лет в зависимости от комплектации, это может быть дачный дом либо дом для круглогодичного проживания. Точный срок гарантии Вы получаете после выбора проекта.
Можно, мы предоставим все базовые технические документы для регистрации.
В компании работают 5 бригад на постоянной основе, имеющие опыт работы по строительству каркасных домов более 8 лет. В зависимости от места расположения объекта, бригады либо ездят каждый день на работу, либо живут на месте строительства. Если у заказчика нет возможности предоставить жильё на время работы, тогда мы берем в аренду бытовку и биотуалет.
Да, наша компания является аккредитованным подрядчиком. Наши специалисты помогут вам подобрать программу. В нашем кредитном отделе вы можете отправить заявку сразу во все банки для оформления ипотечного кредитования на самых выгодных условиях. Наши специалисты окажут вам полное сопровождения от формирования пакета документов до получения денежных средств.
Нет, только кредит и ипотека.
Мы работаем с материнским капиталом, с ипотечными средствами, по остальным программам можно уточнить у менеджера.
Да, доставка в радиусе 100 км от СПб входит в стоимость
Мы используем древесину из Вологодской области.
Работы по прокладке канализации и прочих сетей можно выполнять как параллельно со строительством дома, так и после завершения строительства.
В среднем на дом площадью 100м2 с теплыми полами и стяжкой уходит 15 дней.
Обслуживание каркасного дома значительно легче, чем брусового. Монтаж электрики, сантехники, вентиляции и других коммуникаций происходит без серьезного вмешательства в конструкцию стен. В их полостях уже заложено пространство для скрытого монтажа.
С помощью современных утеплителей и пароизоляционных материалов каркасные дома можно адаптировать под любой климат. В холодных регионах комфортные условия внутри достигаются изменением толщины и типа утеплителя. В жарком и влажном климате обеспечивается необходимая вентиляция внутри стен для предотвращения скопления влаги.
Каркасная технология позволяет минимизировать наличие мостов холода – участков, через которые может уходить тепло. Все полости между стойками каркаса заполняются качественным утеплителем без увеличения толщины стен. Применяемые теплоизоляционные материалы обладают более низкой теплопроводностью в сравнении с древесиной, из которой строят брусовые дома. Таким постройкам необходимо дополнительное утепление после усадки.
Благодаря использованию сухих материалов и легкого веса конструкции, каркасные дома меньше подвержены усадке и появлению трещин. Для основной усадки венцов брусового дома требуется около 12 месяцев. При этом происходит деформация и растрескивание бруса, что негативно влияет на эстетику и увеличение теплопотерь в процессе эксплуатации.
Современные строительные технологии позволяют возводить дома за короткий срок и с минимальной усадкой, которая составляет 2-5%.
По срокам и стоимости выигрывает каркасная технология. Каркасные дома строятся из обработанной древесины и утеплителей, которые могут стоить меньше, чем массивный брус. Для строительства требуется меньше специализированных навыков и трудозатрат, что также снижает стоимость.
Поскольку каркасные дома практически не подвержены усадке, к внутренним отделочным работам можно приступать сразу после завершения строительства.
Каркасные дома менее подвержены риску усадки и деформации из-за влажности. Влага быстрее испаряется из легких стен, в отличие от тяжелых брусовых. Наружная часть бруса больше подвергается внешним негативным факторам, в отличие от внутренней. Как следствие возникают новые источники разгерметизации углов и межвенцовых соединений.
Каркасные дома считаются сейсмоустойчивыми благодаря своей гибкой конструкции и правильному взаимодействию элементов. Легкий, но надежный каркас выдерживание большие нагрузки, включая сильные ветра или землетрясения
Возведение каркасных домов, садовых домиков можно выполнять круглый год, поскольку технологический процесс строительства данного типа исключает использование мокрых процессов и не зависит так сильно от погодных условий, в сравнении с брусовыми домами. В холодную зиму, в крепкий мороз, сырость и влажность ниже, чем в дождливые периоды, что для пиломатериала даже лучше. Даже этап заливки фундамента, который лучше выполнять при плюсовых температурах, в 2022 году уже производится в зимнее время года с использованием технических нововведений без потери качества и дефектов.
Свобода выбора материалов для внешней и внутренней отделки позволяет воплощать различные дизайнерские и архитектурные решения.
Для нашей бригады требуется лишь наличие электричества, они укомплектованы всем необходимым оборудованием для начала работ. Также необходимо предусмотреть подъездные пути для доставки материалов.
Вы абсолютно правы. Мы используем древесину хвойных пород камерной сушки, ветро-влагозащитные пленки и утеплители ведущих производителей: Knauf, Ондулин, Технониколь. Отметим, что помимо качественных материалов важна и квалификация строительной бригады. Наши специалисты обладают необходимыми знаниями и опытом в технологии каркасного домостроения и построили более 100 объектов вместе с нашей компанией.
Для строительства применяются современные материалы с отличными свойствами: эковата Грин Палп, пароизоляционная плёнка Finka Premium, ветрозащита Белтермо и др.
В нашей компании мы предлагаем строительство из материалов камерной сушки, т.к в процессе сушки изменяются геометрические параметры заготовок, и использование подобных материалов позволяет уменьшить риск возникновения щелей и несоответствий в готовой конструкции. Материал естественной влажности, ко всему прочему, более подвержен грибковым заболеваниям.
По периметру дом утепляется одинаково. Толщина утеплителя на Ваш выбор: 100 мм (сезонное), 150 мм (круглогодичное), 200 мм (постоянное проживание с минимальным расходом отопления). В качестве утеплителя для стен используем базальтовую (каменную) плиту; для пола и потолка - минеральную рулонную вату.
Стандартный вариант: для облицовки фасада имитатор бруса; для кровли – металлочерепица. Вы можете подобрать материал на свой вкус: для фасада – сайдинг, пластиковые фасадные панели, фанера или ЦСП и др.; для кровли – мягкая черепица, фальцевая кровля, профлист и др.
У нас большой выбор окон: деревянные или металлопластиковые, двойного или тройного остекления, с фурнитурой (ручки) или без. Цвет профиля на Ваш выбор. Наличник – деревянный, хвойных пород. Усиленная утепленная входная металлическая дверь отечественного производства. Внутренние двери – филёнчатые (хвойный массив), без фурнитуры.
В каркасном домостроении кроме дерева применяется масса других материалов – теплоизоляционных, кровельных и т.д. Наша компания использует только проверенные стройматериалы. Каркас и внутренняя отделка делается из массива дерева без вредных клеев, пропиток и лаков.
Технологии позволяют каркасным домам служить вплоть до 100 лет. Минимальный порог – 50 лет.
Да, можно, при толщине утеплителя от 150 мм и выше. Такое утепление оптимально для нашей климатической зоны. Современные теплоизоляционные материалы позволяют строить теплые каркасные дома. Коэффициент теплопроводности стены каркасника составляет 0,4, поэтому каркасный дом будет даже теплее, чем здание из бруса. В помещении всегда будет комфортно. При этом вы не будете замечать температурных колебаний утром и вечером.

Остались вопросы?

Давайте обсудим
строительство вашего дома
Проконсультируйтесь бесплатно,
это ни к чему Вас не обязывает!
Введите свои контакты
и наш специалист проконсультирует Вас в ближайшее время
Похожие Каркасные дома
Дом каркасный №1
Размеры 13х13,7
Площадь 130м²
2 080 000 ₽
Дом каркасный №2
Размеры 10х11
Площадь 164м²
2 560 000 ₽
Дом каркасный №3
Размеры 7,2х15,8
Площадь 156м²
2 340 000 ₽
Дом каркасный №4
Размеры 11,7х12,1
Площадь 92м²
1 656 000 ₽
Дом каркасный №5
Размеры 7,5х10
Площадь 126м²
2 268 000 ₽
Дом каркасный №6
Размеры 7,5х12,5
Площадь 135м²
2 430 000 ₽
Дом каркасный №7
Размеры 9х9,5
Площадь 171м²
3 078 000 ₽
Дом каркасный №8
Размеры 8х10
Площадь 160м²
2 400 000 ₽
Дом каркасный №9
Размеры 7х9
Площадь 72м²
1 440 000 ₽
Электронный адрес
a.m.89523745885@yandex.ru
Пн-вскр: с 10:00 до 22:00
Телефон для связи
Оставьте заявку
Оставьте свой номер телефона и наш специалист свяжется с вами в ближайшее время!
Заявка на ипотеку
Оставьте свой номер телефона и наш специалист свяжется с вами в ближайшее время!
Материнский капитал

Компания «Альянс Мастеров» работает с материнским капиталом!

Мечтаете о своем доме —  Мы Вам поможем!

«Альянс Мастеров» предлагает услуги по строительству загородных домов с привлечением материнского (семейного) капитала. В этом случае использование средств будет расцениваться как улучшение условий проживания.

Для заказа дома с оплатой материнским капиталом необходимо:

Обратится в отделение Пенсионного фонда по месту жительства или месту нахождения, чтобы подать заявление о направлении материнского капитала на строительство жилого дома. Вместе с заявлением нужно будет подать в Пенсионный фонд все необходимые документы.

  • Копию разрешения на строительство;
  • Оригинал(копию) строительно-подрядного договора;
  • Обязательство оформить дом в общую собственность всех членов семьи по окончании строительства;
  • Копию документа о праве на земельный участок.

Подаете заявление и ждете максимум месяц. Не позднее этого срока Пенсионный фонд должен вынести решение: удовлетворить заявление или отказать в этом.

В случае удовлетворения Пенсионным фондом заявления, следует перечисление средств на строительство дома на расчетный счет, указанный в договоре.

Перевод средств осуществляется Пенсионным фондом в течение двух месяцев со дня вынесения положительного решения по заявлению.

Далее мы приступаем к строительству дома, согласно договору.

Для подготовки договора нам необходимо:

  • скан паспорт лица, на которое будет заключаться договор,
  • скан сертификата материнского капитала,
  • скан выписки о размере средств материнского (семейного) капитала,
  • скан документа на земельный участок, на котором будет осуществляться строительство, с указанием кадастрового номера и адреса участка.
Акция!!! до конца июня
Дом S-60 м. кв. под ключ всего за 3 050 000 рублей